Устройство системы
Подвесной потолок Armstrong представляет собой систему профилей, которая крепится к основному потолку при помощи специальных подвесов. Эти профили формируют квадратные или прямоугольные ячейки, в которые вставляются светильники и плиты. Все эти элементы совместно образуют потолочную систему Armstrong.

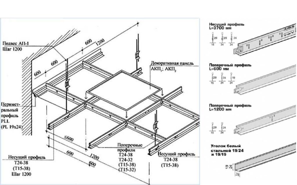
Профили бывают несущими (направляющими). Именно они крепятся к черновому потолку через подвесы и несут основную нагрузку. Общая масса всей системы невелика, поэтому направляющие устанавливаются через каждые 120 см. Подвесы монтируются вдоль предварительно размеченных линий с интервалом в 50 см. В нижней части подвесов есть крючки, которые вставляются в отверстия направляющих. Направляющие просто надеваются на эти крючки. Таким образом, получаются параллельные направляющие, установленные с интервалом в 120 см.

Между несущими профилями с интервалом в 120 см устанавливается поперечный профиль. Это образует клетку размером 120 см * 120 см. Плиты подвесного потолка Armstrong имеют размер 60*60 см (точные размеры — 598 мм * 598 мм). Для установки плит крепят профили каркаса, чтобы образовать клетку нужного размера. Затем остается лишь установить светильники и вставить плиты в ячейки.
Какие есть достоинства и недостатки.
Изначально потолки Armstrong разрабатывались для использования в промышленных, офисных и общественных помещениях. Однако их выдающиеся характеристики привлекли внимание и в частных домах и квартирах. Вот некоторые из свойств подвесных потолков типа Armstrong:
Доступная цена: Это самый экономичный способ установки подвесных потолков.
Широкий выбор плит и профилей: Плиты могут быть не только белыми матовыми, но и металлическими, окрашенными в различные цвета с разной степенью блеска. Среди них можно найти стеклянные, зеркальные, покрытые пленкой «под дерево» и другие. Более того, эти плиты легко могут быть изготовлены самостоятельно, обеспечивая уникальный дизайн.
Простой монтаж: Все этапы монтажа просты и требуют минимального времени.

Высокая ремонтопригодность: В случае повреждения плиты легко заменить их новыми. Поэтому при закупке компонентов рекомендуется приобретать плиты с запасом.
Отличное скрытие коммуникаций и хорошая вентиляция: Подвесные потолки отлично скрывают все коммуникации и позволяют организовать эффективную вентиляцию благодаря перфорации на плитах. Даже если плиты монолитные, они просто лежат на каркасе, что обеспечивает хорошую вентиляцию в пространстве между потолком и верхним этажом.
Легкая конструкция: Профили изготовлены из алюминиевого сплава, а плиты — из прессованных бумажных отходов различной толщины или легкого сплава.
Потолок Armstrong — великолепное решение для различных типов помещений. Именно поэтому он покорил сердца владельцев офисов, торговых центров, кинотеатров и многих других учреждений. Однако, как и у любого продукта, есть и некоторые минусы. Во-первых, внешний вид такого потолка идеально подходит для офисных и общественных помещений, но может вызвать разногласия в частных домах. Это, однако, дело вкуса. Во-вторых, система подвесная, что может сократить высоту потолков, что является проблемой для некоторых. Однако, если высота потолков достаточна, то данная система легко устанавливается. Это и есть основные недостатки данного типа потолков.
Элементы системы
Потолочная система Armstrong представляет собой комплект элементов, которые просто соединяются между собой. Одним из ее преимуществ является модульность, которая позволяет создать потолок любого размера и формы. Однако, следует отметить, что система не предназначена для нестандартных, нелинейных форм, и в стандартном наборе отсутствуют решения для таких случаев. Поэтому этот тип подвесного потолка рекомендуется использовать только в квадратных и прямоугольных помещениях.

Профили
Профили для потолка Armstrong изготавливаются из легкого алюминиевого сплава. На верхней части профилей имеется перфорация, которая используется для их крепления к подвесам и соединения друг с другом. Нижняя часть профилей, видимая из помещения, обычно бывает серебристого или белого цвета. Некоторые модели также доступны в черном и золотистом цветах, хотя они могут быть менее распространены.

Длины несущих профилей составляют 600 мм, 1200 мм и 3600 мм. Несущие профили должны быть цельными (при необходимости могут быть сращены), поэтому выбираем длину так, чтобы профиль был не короче самого помещения. Затем профиль нарезается на участки нужной длины.
Поперечные профили состоят из частей длиной 120 см и 60 см. При составлении подвесной системы необходимо рассчитать количество каждого вида профилей для вашего случая. Имейте в виду, что поперечные профили нельзя резать, так как у них по краям имеются выступы, с помощью которых они соединяются с несущими профилями.

Несущие и поперечные профили представлены в двух размерах, соответствующих разным типам плит: с полочкой на 15 мм и 24 мм. Также имеется различие в толщине «спинки» для разных типов плит: 19 мм, 24 мм и 29 мм.
Помимо этого, существуют пристенные профили, выполненные в форме уголка, которые монтируются вдоль периметра помещения. Крайние плиты опираются на них. Такие профили также имеют разные размеры полочек — 19 мм и 24 мм.
Плиты
Отзывы
Отзывов пока нет.